0.1 Km
Nowoczesne wykończenie w stylu premium
Morzyczańska - Poznań
Nowoczesne 2-pokojowe mieszkanie z oddzielną kuchnią i balkonem, położone na ostatnim piętrze kameralnego budynku z windą. Idealne dla singla lub pary – jasne wnętrza, funkcjonalny układ i spokojna okolica blisko terenów rekreacyjnych nad Wartą.











Umów się na
oglądanie mieszkania
Metraż wiadomy z góry
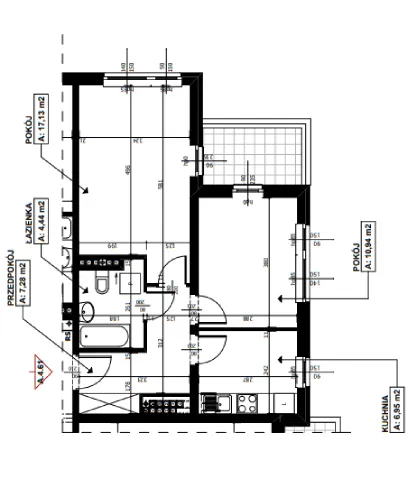
Rozkład pomieszczenia
- Morzyczańska
Morzyczańska
Funkcjonalne mieszkanie w niskim bloku z windą, z wydzieloną kuchnią, salonem i sypialnią, zapewniającymi wygodny podział stref. Położone w spokojnej części Rataj, z szybkim dojazdem do centrum i bliskością zieleni oraz ścieżek spacerowych.
- Powierzchnia c. 46,74 m²
- Sypialnia 11,57 m²
- Salon 16,88 m²
- Kuchnia 7,00 m²
- Łazienka 4,86 m²
- Hol 6,43 m²
- Balkon 4,89 m²

Idealne miejsce do życia i inwestowania
Lokalizacja, która działa
na Twoją korzyść
Co znajduje się blisko?
Dworzec
20 minut
Centrum
10 minut
- Przystanek tramwajowy
- Przystanek autobusowy
0.1 Km
- Bankomat
0.2 Km
- Lidl, Biedronka
0.2 Km
Przestrzeń w której chce się żyć
Zalety osiedla
Z myślą o komforcie i wygodzie przyszłych mieszkańców, wybieramy inwestycje w lokalizacjach, które oferują więcej niż tylko metraż. Sprawdź, co zyskujesz w pakiecie z mieszkaniem:
Rozrywka
Blisko kino, kręgle i inne atrakcje
Monitoring
Całodobowy monitoring osiedla i kontrola dostępu
Restauracje
Blisko osiedla restauracje i sklepy spożywcze
Strefa pupila
Wybieg dla psów
Tereny zielone
Ogrody, patio, zaaranżowana przestrzeń wspólna
Strefa relaksu i aktywności
Blisko siłownia, plac zabaw

O nas
We must explain to you how all seds this mistakens idea off denouncing pleasures and praising pain was born and I will give you a completed accounts off the system and expound the actually teaching.
Kontakt
Adres
Ul. Porzeczkowa 30, 61-306 Poznań
Telefon
Email
© MJH Nieruchomości 2025, Wszelkie prawa zastrzeżone.

